Schedule a tour today!
Where Unrivaled Craftsmanship Meets the
Ultimate Angling Lifestyle.
C Global is thrilled to announce our latest signature project: a 4,300 sqft custom model home taking shape on the pristine waterfront of Port Charlotte. This home is a testament to our philosophy—that a house is not just built, but meticulously crafted. In collaboration with our esteemed design partners, we are creating a residence that is both the perfect escape for the discerning fisherman and a breathtaking example of the quality and detail that define the C Global name.
From the initial concept to the final, flawless finish, this home is being engineered from the ground up to embody a very specific dream.
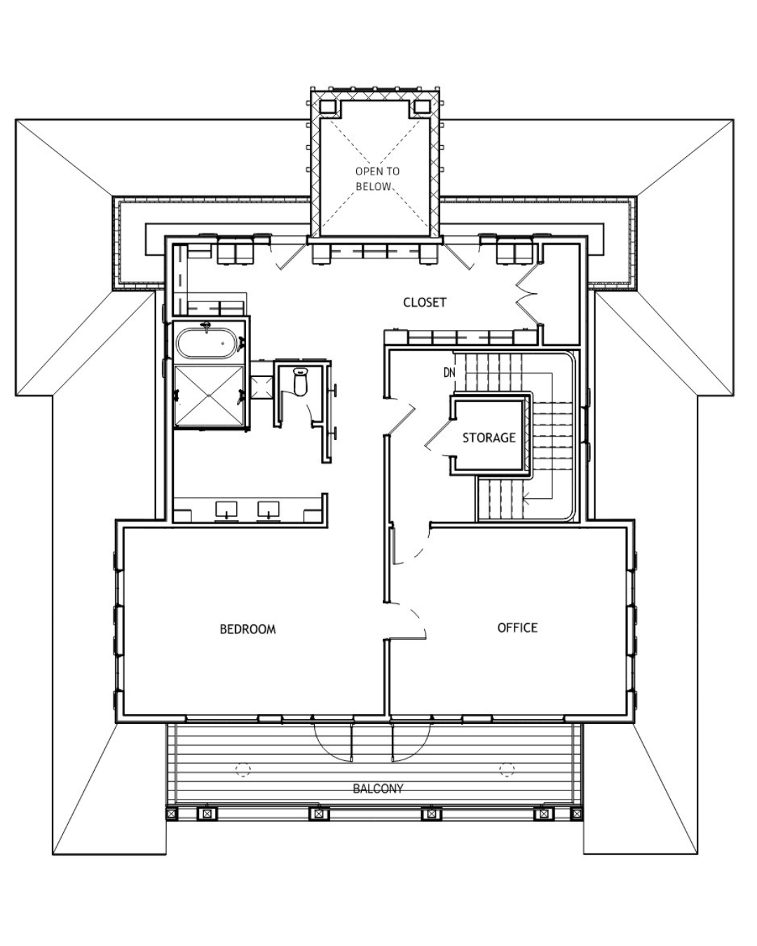
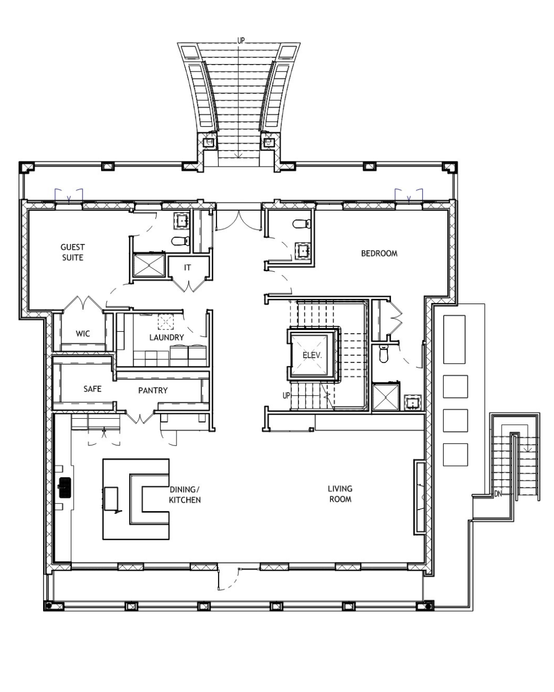
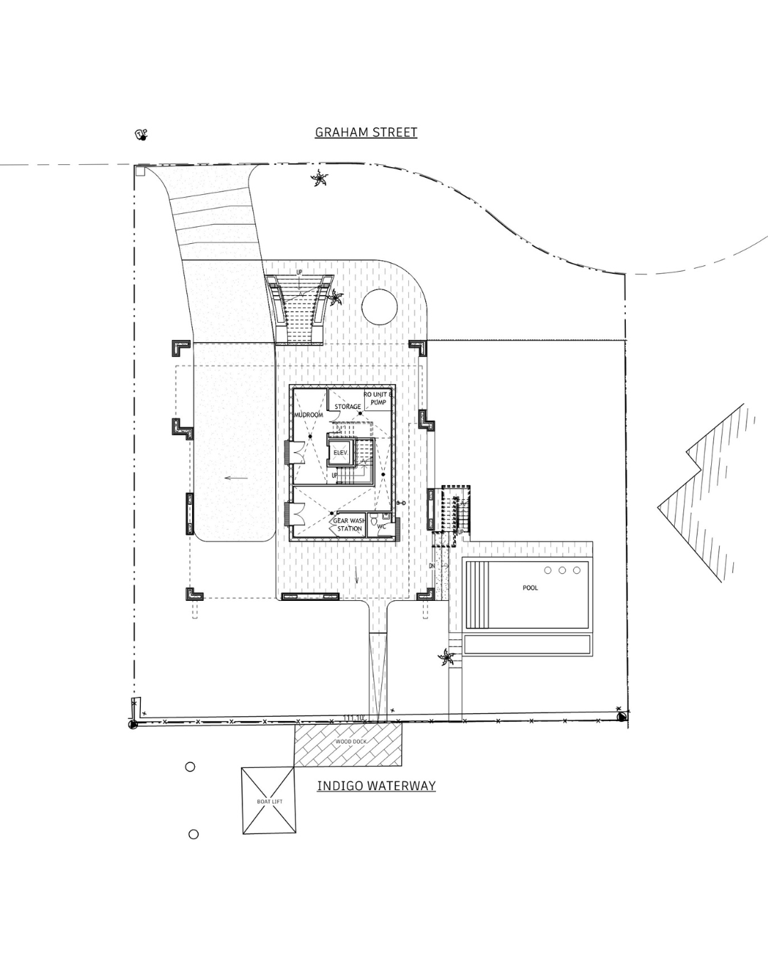
The Vision: A Seamless Angler’s Sanctuary
Imagine returning from a successful day on the water. This home is designed to make every part of that experience effortless and elegant.
- Integrated Gear Wash: Located on the lower level, a dedicated, fully integrated wash-down station allows you to rinse rods, reels, and gear, keeping the main living areas pristine.
- Custom Tackle Station: The living room cabinetry features a masterfully concealed, built-in tackle station. Your most prized equipment is always organized, accessible, and ready for your next adventure, without ever compromising the home’s sophisticated aesthetic.
- The Chef’s Catch: The gourmet kitchen includes a suite of specialized small appliances, highlighted by a built-in blast freezer. Preserve the freshness of your catch instantly, ensuring a taste as pure as the moment you brought it aboard.
Resilience and Craftsmanship, Forged for the Coast
A C Global home offers more than beauty; it offers profound peace of mind. Engineered to stand against the very worst of Florida’s weather, this home is designed to be both Hurricane-Proof and Flood-Proof, providing a secure and steadfast sanctuary for your family and your investment.
These protective elements are woven into a tapestry of unparalleled craftsmanship. Every joint, every surface, and every sightline reflects our relentless attention to detail. This model home is a living gallery of the custom millwork, innovative design, and superior materials that we bring to every unique project we undertake.
A Showcase of the C Global Process
We invite you to view this 4,300 sqft model home not just as a property for sale, but as a tangible example of the C Global difference. Witness firsthand the extensive preconstruction work, the collaborative design concept, and the obsessive attention to detail that we pour into every single project. It is a living testament to our promise to turn your vision into a home that is uniquely, unequivocally yours.
Where Unrivaled Craftsmanship Meets the Ultimate Angling Lifestyle.
C Global is thrilled to announce our latest signature project: a custom model home taking shape on the pristine waterfront of Port Charlotte. This home is a testament to our philosophy—that a house is not just built, but meticulously crafted. In collaboration with our esteemed design partners, we are creating a residence that is both the perfect escape for the discerning fisherman and a breathtaking example of the quality and detail that define the C Global name.
From the initial concept to the final, flawless finish, this home is being engineered from the ground up to embody a very specific dream.
Model Available In Two Elevations


Your Invitation to Experience Perfection
This waterfront luxury home is a unique opportunity—a dream home waiting for its first owner.
We are currently scheduling private consultations and site tours for interested parties. Whether you are captivated by this specific Fisherman’s Delight and wish to make it your own, or you want to witness the C Global standard of excellence for your own future project, we encourage you to connect with us.



